The Pearl Waterpoint by Nam Long Group

View 360
View 360
Trang chủ
Đăng ký
Trang chủ
0909 025 189
mouse

icon
TỔNG QUAN The Pearl

The Pearl Waterpoint là một phân khu nổi bật trong tổng thể Khu đô thị Waterpoint, tọa lạc tại Bến Lức, Long An. Được phát triển bởi Nam Long Group cùng đối tác Nhật Bản Nishi Nippon Railroad, The Pearl định vị là phân khu biệt thự và dinh thự cao cấp, mang phong cách kiến trúc Địa Trung Hải sang trọng và tinh tế.

TỔNG QUAN The Pearl | The Pearl Waterpoint by Nam Long Group

HỆ SINH THÁI TIỆN ÍCH
TẤT CẢ TRONG MỘT

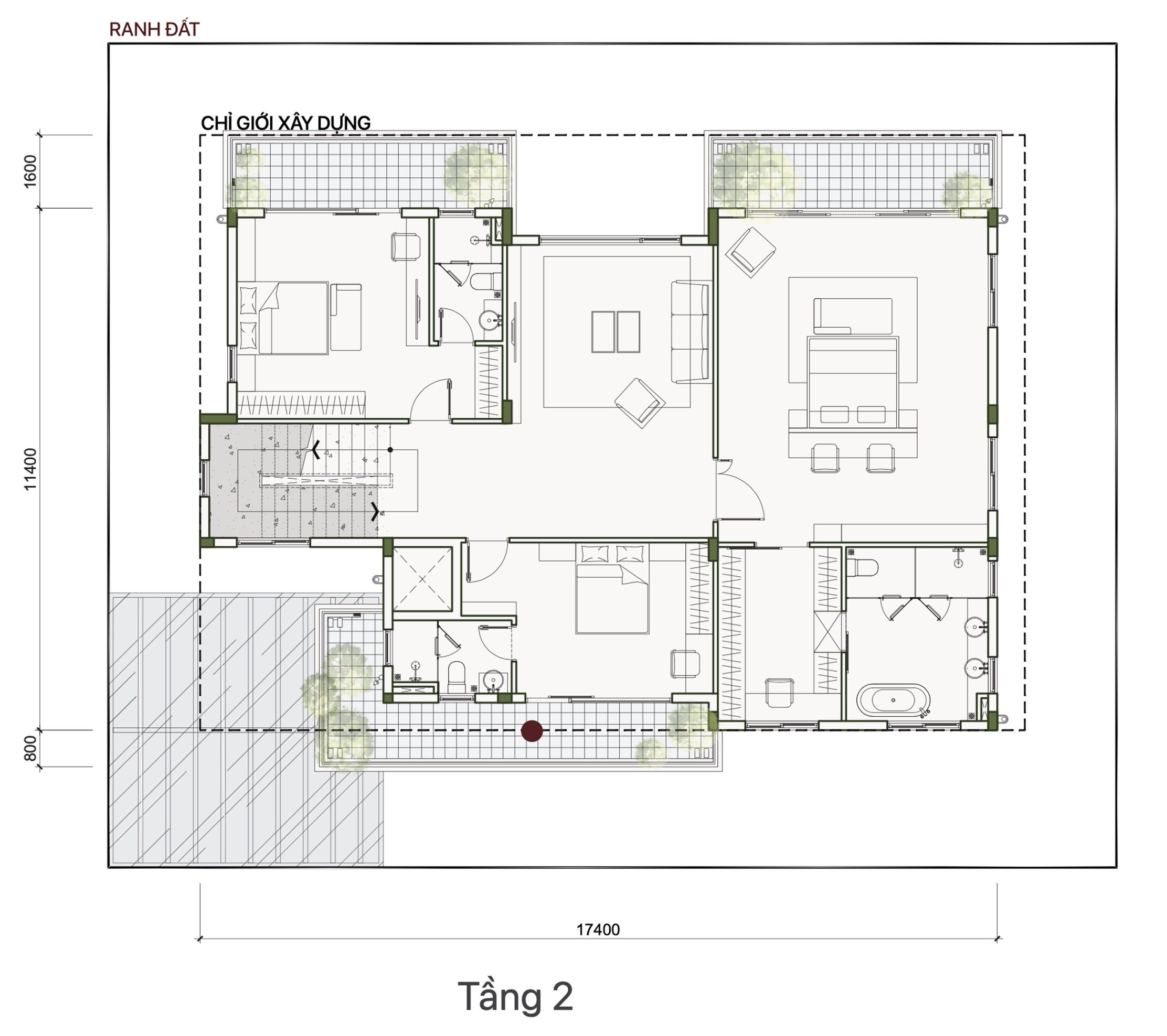
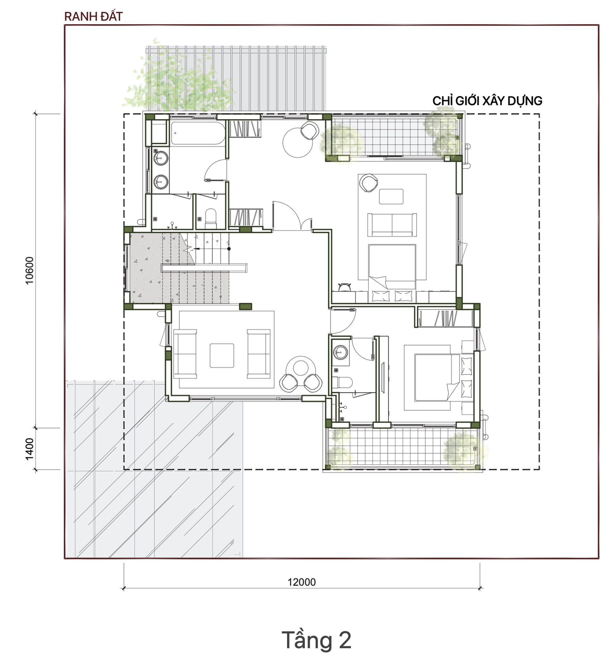
Garden Villa (Biệt thự vườn)

Đặc điểm nổi bật: Garden Villa là lựa chọn lý tưởng cho những chủ nhân yêu thích sự yên tĩnh, riêng tư và một không gian sống ngập tràn sắc xanh. Điểm nhấn chính của loại hình này là khoảng sân vườn rộng rãi, được thiết kế tinh tế bao quanh biệt thự, tạo nên một ốc đảo xanh mát ngay tại gia.

Thiết kế: Các căn Garden Villa thường được thiết kế với nhiều cửa sổ lớn, ban công và hiên nhà mở rộng, giúp tối đa hóa tầm nhìn ra khu vườn và tận dụng ánh sáng tự nhiên, gió trời. Kiến trúc có thể ưu tiên sự kết nối giữa không gian trong nhà và ngoài trời, khuyến khích các hoạt động gia đình ngoài trời như tiệc BBQ, khu vui chơi trẻ em hay hồ cá Koi.

Không gian sống: Mang đến một không gian sống thanh bình, nơi gia chủ có thể thư giãn, tái tạo năng lượng giữa thiên nhiên cây cỏ. Khu vườn riêng không chỉ là nơi trồng cây, thưởng hoa mà còn là biểu tượng của sự sung túc, an lành.

Vị trí: Thường được bố trí tại các vị trí nội khu yên tĩnh, vẫn đảm bảo kết nối thuận tiện đến các tiện ích chung nhưng ưu tiên sự riêng tư tuyệt đối.

Đối tượng phù hợp: Các gia đình đa thế hệ tìm kiếm không gian sống rộng rãi, gần gũi thiên nhiên, coi trọng sự riêng tư và những khoảnh khắc quây quần bên người thân.

Canal Villa (Biệt thự ven kênh đào)

Đặc điểm nổi bật: Canal Villa mang đến trải nghiệm sống độc đáo bên những dòng kênh đào uốn lượn len lỏi trong nội khu The Pearl. Đây là sự kết hợp hoàn hảo giữa kiến trúc sang trọng và cảnh quan sông nước thơ mộng, tạo nên một không gian sống tựa như những “Venice thu nhỏ”.

Thiết kế: Các căn biệt thự này thường có mặt tiền hoặc mặt sau tiếp giáp trực tiếp với kênh đào. Thiết kế tập trung vào việc tối ưu hóa tầm nhìn ra mặt nước, có thể bao gồm các ban công lãng mạn, sân thượng nhìn ra kênh, hoặc thậm chí là một khoảng sân vườn nhỏ tiếp giáp mép nước. Một số thiết kế có thể tích hợp bến thuyền nhỏ riêng cho các hoạt động giải trí nhẹ nhàng trên kênh.

Không gian sống: Cư dân Canal Villa được tận hưởng bầu không khí trong lành, mát mẻ từ dòng nước, cùng cảnh quan thanh bình và tiếng nước chảy róc rách. Đây là không gian sống lý tưởng cho những tâm hồn lãng mạn, yêu thích sự yên bình và nét đẹp duyên dáng của kiến trúc ven kênh.

Vị trí: Tọa lạc dọc theo các tuyến kênh đào nội khu, tạo thành những dãy biệt thự đồng bộ và thơ mộng.

Đối tượng phù hợp: Những chủ nhân có gu thẩm mỹ tinh tế, yêu thích không gian sống lãng mạn, thanh bình và khác biệt, nơi có thể tận hưởng những phút giây thư thái bên dòng kênh xanh mát.

Riverfront Villa / Grand Villa (Biệt thự / Dinh thự mặt tiền sông)

Đặc điểm nổi bật: Đây là dòng sản phẩm đẳng cấp và đắt giá nhất tại The Pearl, sở hữu vị trí độc tôn với mặt tiền hướng trực tiếp ra sông Vàm Cỏ Đông hùng vĩ. “Grand Villa” (Dinh thự) là phiên bản nâng cấp, thường có quy mô diện tích đất và diện tích xây dựng lớn hơn, cùng thiết kế bề thế, xa hoa hơn.

Thiết kế: Kiến trúc của Riverfront Villa và đặc biệt là Grand Villa được trau chuốt tỉ mỉ đến từng chi tiết, khẳng định vị thế và đẳng cấp của chủ nhân. Thiết kế thường mang tính biểu tượng, với không gian mở tối đa để thu trọn cảnh quan sông nước vào tầm mắt. Các phòng chính như phòng khách, phòng ngủ master thường có view sông trực diện. Sân vườn rộng lớn, hồ bơi vô cực riêng, và các tiện ích giải trí cá nhân cao cấp có thể là một phần không thể thiếu. Một số dinh thự có thể có bến du thuyền riêng.

Không gian sống: Mang đến trải nghiệm sống thượng lưu tuyệt đối, nơi chủ nhân có thể tận hưởng không khí trong lành, cảnh quan sông nước khoáng đạt và những buổi hoàng hôn hay bình minh lộng lẫy trên sông. Đây không chỉ là một ngôi nhà, mà còn là một biểu tượng của sự thành đạt và phong cách sống đỉnh cao.

Vị trí: Tọa lạc tại những vị trí đẹp nhất, trực diện sông Vàm Cỏ Đông, đảm bảo tầm nhìn không giới hạn và sự riêng tư tối đa.

Đối tượng phù hợp: Giới thượng lưu, doanh nhân thành đạt, những người tìm kiếm một không gian sống xứng tầm đẳng cấp, khẳng định vị thế cá nhân và yêu thích sự giao hòa tuyệt đối với thiên nhiên sông nước hùng vĩ.

Mặt bằng tổng thể The Pearl Mặt bằng tổng thể The Pearl
01Khu bể bơi
02Sunset Lounge & Coffee
03Sân thể thao đa năng
04Đường dạo ven sông
05Bến du thuyền
06Bãi đậu xe
07Bến hạ thủy
01Sunset Bar
02Sunset coffee
03Sân thể dục ngoài trời
04Đường dạo bộ
04Đường dạo bộ
04Đường dạo bộ
04Đường dạo bộ
05Pavilion
05Pavilion
05Pavilion
05Pavilion
05Pavilion
05Pavilion
06Sân chơi trẻ em
07Sàn yoga
08Khu dã ngoại
01Lối vào công viên bờ sông
02Guard house
03Sân thể dục ngoài trời
04Đường dạo bộ
05Pavilion
05Pavilion
06Sàn yoga
07Sân chơi trẻ em
01Cầu Valencia
02Sân chơi trẻ em
03Bến thuyền Kayak
03Bến thuyền Kayak
04Đường dạo bộ
04Đường dạo bộ
05Pavilion
01Sàn Deck Coffee
02Artwork nàng tiên cá
03Công viên ven kênh
04Đường dạo bộ
04Đường dạo bộ
01Vườn cổ điển
02Sân chơi trẻ em
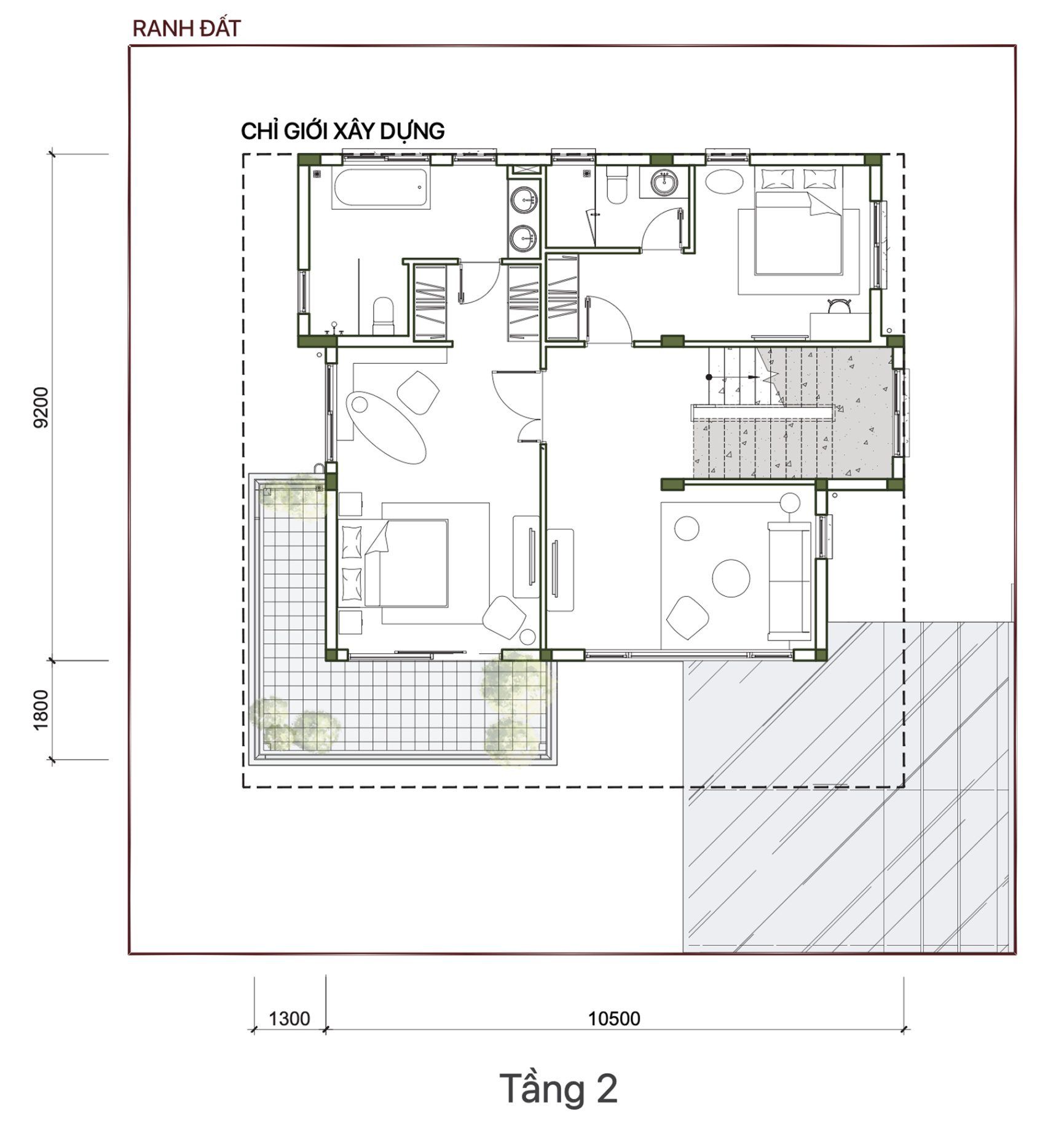
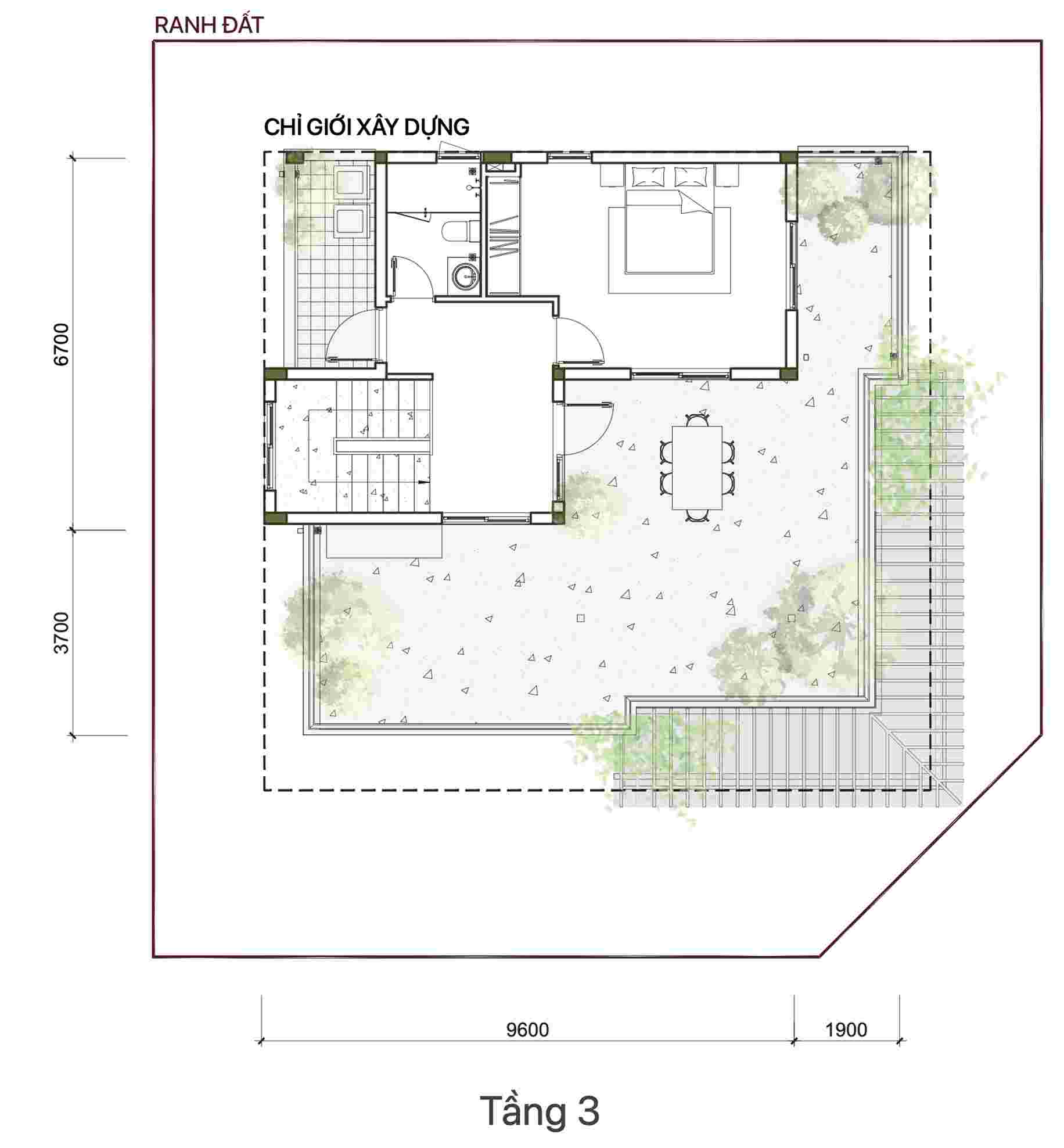
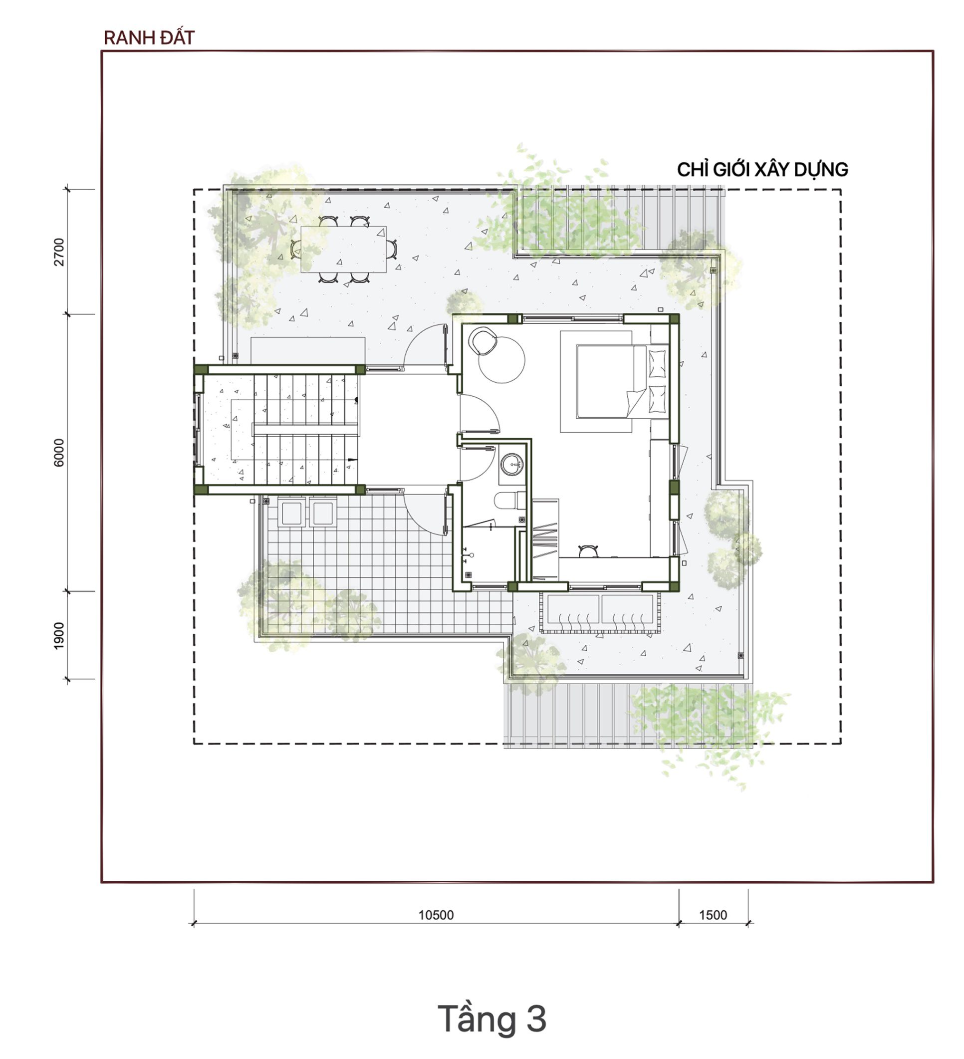
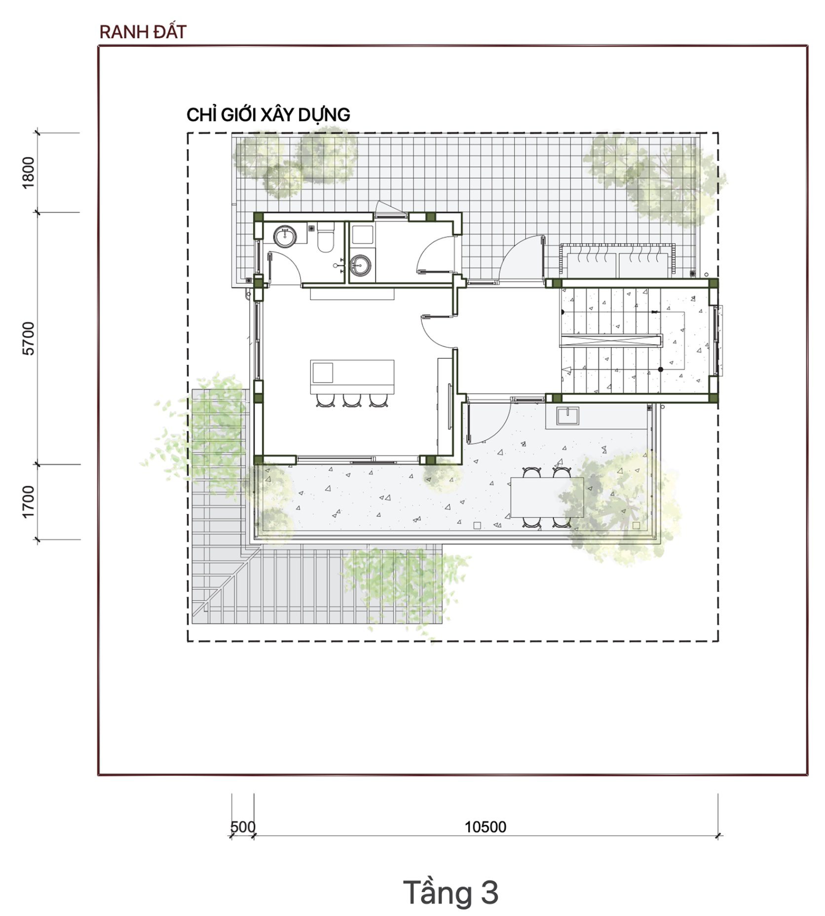
Xem mặt
bằng căn

"BÁN ĐẢO" NGHỈ DƯỠNG RIÊNG TƯ

A Sunset ClubHouse

01 Khu bể bơi
02 Sunset Lounge & Coffee
03 Sân thể thao đa năng
04 Đường dạo ven sông
05 Bến du thuyền
06 Bãi đậu xe
07 Bến hạ thủy

B Công viên ven sông: Sunset River Park

01 Sunset Bar
02 Sunset Coffee
03 Sân thể dục ngoài trời
04 Đường dạo bộ
05 Pavilion
06 Sân chơi trẻ em
07 Sàn yoga
08 Khu dã ngoại

C Sunrise Canal Clubhouse

01 Lối vào công viên bờ sông
02 Guard house
03 Sân thể dục ngoài trời
04 Đường dạo bộ
05 Pavilion
06 Sàn yoga
07 Sân chơi trẻ em

D Neighbour Park

01 Cầu Valencia
02 Sân chơi trẻ em
03 Bến thuyền Kayak
04 Đường dạo bộ
05 Pavilion

E Canal Park

01 Sàn Deck Coffee
02 Artwork nàng tiên cá
03 Công viên ven kênh
04 Đường dạo bộ

F Solis Garden

01 Vườn cổ điển
02 Sân chơi trẻ em

ĐỐI TÁC

KHU ĐÔ THỊ

ĐƠN VỊ PHÁT TRIỂN

CHỦ ĐẦU TƯ NAM LONG

Dự án được phát triển bởi Nam Long Group, một thương hiệu uy tín trên thị trường bất động sản Việt Nam, hợp tác cùng Nishi Nippon Railroad, tập đoàn lớn với hơn 100 năm kinh nghiệm từ Nhật Bản. Sự hợp tác này là bảo chứng cho chất lượng, tiến độ và pháp lý của dự án.

icon
TIN TỨC & SỰ KIỆN

Mùa hè của cư dân nhí tại đô thị tích hợp Waterpoint
Mùa hè của cư dân nhí tại đô thị tích hợp Waterpoint
04/10/2025
Mùa hè đến, mang theo bao háo hức về những chuỗi ngày nghỉ ngơi, vui chơi và khám phá. Với các bậc phụ huynh, đây cũng là thời điểm trăn trở tìm kiếm một không gian lý tưởng để con trẻ có những trải nghiệm mùa hè đáng nhớ, tránh xa các thiết bị điện tử và hòa mình vào thiên nhiên. Nhiều gia đình đã tìm thấy lời giải tại các khu đô thị tích hợp hiện đại, và Mùa hè của cư dân nhí tại đô thị tích hợp Waterpoint đang trở thành một chủ đề được quan tâm, nơi con trẻ được thỏa sức phát triển toàn diện.
Những tên tuổi quốc tế đứng sau đô thị tích hợp Waterpoint

Những tên tuổi quốc tế đứng sau đô thị tích hợp Waterpoint

04/10/2025
Sự thành công và tầm vóc của một dự án bất động sản quy mô lớn không chỉ đến từ vị trí đắc địa hay tiềm lực của chủ đầu tư, mà còn được bảo chứng bởi uy tín và kinh nghiệm của các đối tác tham gia phát triển. Đối với khu đô thị tích hợp Waterpoint, những tên tuổi quốc tế danh tiếng đứng sau đã góp phần quan trọng kiến tạo nên một không gian sống đẳng cấp, mang tiêu chuẩn quốc tế cho thị trường bất động sản Việt Nam.
Đại đô thị tích hợp: Tiếp nối di sản sông nước phương Nam

Đại đô thị tích hợp: Tiếp nối di sản sông nước phương Nam

04/10/2025
Trên vùng đất rộng 355ha bên dòng sông Vàm Cỏ Đông thơ mộng, từ những năm 2000, Tập đoàn Nam Long đã khởi xướng hành trình kiến tạo Waterpoint. Đây không chỉ là một đô thị vệ tinh chiến lược đón đầu xu hướng phát triển vùng, mà còn là một Đại đô thị tích hợp tiếp nối di sản sông nước phương Nam một cách trân trọng và bài bản. Chỉ cách trung tâm TPHCM khoảng 30 phút di chuyển, Waterpoint ngày càng khẳng định vị thế của mình trong bản đồ các đô thị vệ tinh, đồng thời hoàn thiện hệ sinh thái tiện ích đa dạng từ thể dục thể thao, câu lạc bộ cộng đồng đến trường học quốc tế, phòng khám, siêu thị và hệ thống xe bus nội khu, liên vùng.
The Pearl: Nơi tôn vinh nghệ thuật sống của giới tinh hoa tại đại đô thị Waterpoint

The Pearl: Nơi tôn vinh nghệ thuật sống của giới tinh hoa tại đại đô thị Waterpoint

04/10/2025
Trên thị trường bất động sản cao cấp, The Pearl nổi lên như một điểm sáng đặc biệt, không chỉ là nơi an cư mà còn là biểu tượng của một “nghệ thuật sống” đẳng cấp, hướng đến trải nghiệm sâu sắc và tinh tế của giới tinh hoa. Với vị thế độc tôn trong lòng đại đô thị Waterpoint, The Pearl hứa hẹn kiến tạo một không gian sống “fine-living”, nơi sự tiện nghi, cảm xúc và gu thẩm mỹ cá nhân hòa quyện, định hình một chuẩn mực sống khác biệt và đầy giá trị cho những chủ nhân xứng tầm.
Tiến độ thanh toán
ĐĂNG KÝ NGAY